Skip To Content

61850 Chollita Road

Joshua Tree, CA 92252
  • $1,649,000
  • STATUS: Active
  • ON SITE: 178 Days
  • ID#: 25589287
UPDATED: 42 min ago
$1,649,000
  • 17
    BEDS
  • 1.63
    ACRES
  • 0
    BATHS
  • 0
    1/2 BATHS
  • 13,451
    SQFT
  • $123
    $/SQFT
Type:
Multi-Family
Built:
1964
County:

School Ratings & Info

Listing Agent(s): Shawn S. Kormondy of Keller Williams Beverly Hills (310-432-6400)


Description

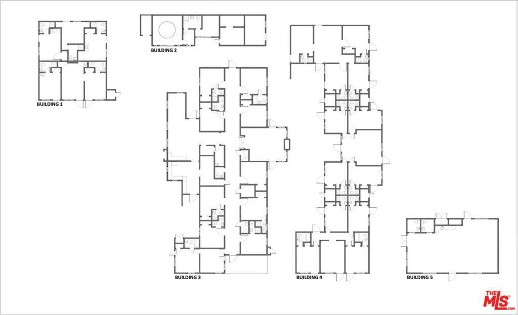
FORECLOSURE | VALUE-ADD CARE FACILITY OPPORTUNITY JOSHUA TREE, CA Former senior retirement and care facility situated on approximately 1.63 acres in a five-building, campus-style configuration. The property includes 45 rooms, a dedicated wellness area, and a community gathering room, offering a functional layout designed for residential care operations.Originally developed for senior housing, the existing improvements create a practical repositioning opportunity for assisted living, rehabilitation, transitional housing, or other care-oriented residential uses, subject to licensing and approvals.T his is not a ground-up project. The site benefits from established infrastructure, existing structures, and a configuration that supports operational scalability for an experienced operator seeking to stabilize and reposition an underutilized asset. Significant upside potential for qualified buyers pursuing adaptive reuse, care facility operations, or strategic long-term hold.

Monthly Payment Calculator



Based on information from California Regional Multiple Listing Service, Inc. as of 2026-03-06T18:29:54.973. This information is for your personal, non-commercial use and may not be used for any purpose other than to identify prospective properties you may be interested in purchasing. Display of MLS data is deemed reliable but is not guaranteed accurate by the MLS or eXp Realty of California Inc.. Licensed in the State of California, USA.
www.hometownnorthcounty.com/homes/167723219
Print Image

61850 Chollita Road Joshua Tree, CA 92252

  • Price: $1,649,000
  • Status: Active
  • On Site: 178 Days
  • Updated: 42 min ago
  • ID#: 25589287
17
Beds
0
Baths
0
½ Baths
1.63
Acres
13,451
SQFT
$123
$/SQFT
1964
Built
County:
San Bernardino
Property Description
FORECLOSURE | VALUE-ADD CARE FACILITY OPPORTUNITY JOSHUA TREE, CA Former senior retirement and care facility situated on approximately 1.63 acres in a five-building, campus-style configuration. The property includes 45 rooms, a dedicated wellness area, and a community gathering room, offering a functional layout designed for residential care operations.Originally developed for senior housing, the existing improvements create a practical repositioning opportunity for assisted living, rehabilitation, transitional housing, or other care-oriented residential uses, subject to licensing and approvals.T his is not a ground-up project. The site benefits from established infrastructure, existing structures, and a configuration that supports operational scalability for an experienced operator seeking to stabilize and reposition an underutilized asset. Significant upside potential for qualified buyers pursuing adaptive reuse, care facility operations, or strategic long-term hold.
Exterior Features

Architectural Style Traditional Foundation Details Slab Parking Features GuestGatedPrivateOne SpaceUnassigned Parking Total 0 Patio And Porch Features None Pool Features None Pool Private YN No Property Attached YN No Spa Features In Ground Spa YN Yes View DesertMountain(s) View YN Yes

Interior Features

Accessibility Features None Common Walls No Common Walls Cooling None Cooling YN No Fireplace Features None Fireplace YN No Heating None Heating YN No

Property Features

Additional Parcels YN Yes Association YN No Gross Income 0 Laundry Features None Levels One Listing Agreement Exclusive Right To Sell Listing Service Full Service Net Operating Income 0 New Construction YN No Possession Close Of Escrow Property Condition FixerRepairs Major Senior Community YN No Sewer Septic Type Unknown Special Listing Conditions Standard Water Source Public Zoning JT/RM



Based on information from California Regional Multiple Listing Service, Inc. as of 2026-03-06T18:29:54.973. This information is for your personal, non-commercial use and may not be used for any purpose other than to identify prospective properties you may be interested in purchasing. Display of MLS data is deemed reliable but is not guaranteed accurate by the MLS or eXp Realty of California Inc.. Licensed in the State of California, USA.
 
https://bt-photos.global.ssl.fastly.net/socal/orig_boomver_2_375146555-2.jpg https://bt-photos.global.ssl.fastly.net/socal/orig_boomver_2_375146555-2.jpg https://bt-photos.global.ssl.fastly.net/socal/orig_boomver_2_375146555-2.jpg
Logo
eXp Realty of California Inc.
2603 Camino Ramon Suite 200
San Ramon CA, 94583
Listing Agent(s): Shawn S. Kormondy of Keller Williams Beverly Hills (310-432-6400)